GENERATIONENHAUS

Ein Haus im Wandel – manchmal ändern sich die Bedürfnisse im Laufe der Zeit.

Umbau statt Neubau, eine Möglichkeit, die immer mehr in Betracht gezogen wird.
Wie auch hier bei unserem neuen Herzensprojekt, dem Generationenhaus.
In einem Bestandshaus stecken immer viele tolle Erinnerungen. Dieses Wohnhaus wurde bereits in den 60er Jahren von Oma und Opa als Einfamilienhaus geplant. Es wurde selbst Hand angelegt, viel Schweiß und Herzblut hineingesteckt. Etwa 20 Jahre später wurde mehr Wohnraum benötigt und das Haus wurde kurzerhand mit einer zusätzlichen Wohneinheit erweitert.




Doch die Zeit vergeht und die Familie ist gewachsen, das heißt, es wurde noch etwas mehr Platz benötigt. Also kamen wir ins Spiel und haben Raum für die dritte Wohneinheit geschaffen.
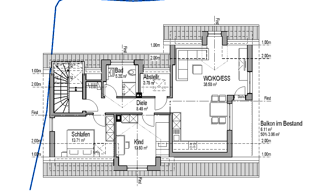
Um im Spitzboden Wohnraum zu gewinnen, haben wir den Kniestock etwas erhöht, die Dachneigung von 30° auf 45° geändert und insgesamt drei Dachgauben errichtet.
So entstand in dem früheren Spielzimmer eine knapp 80 m² große 3-Zimmer Wohnung.

Um ins Dachgeschoss noch mehr Raum und Licht hineinzubringen, wurden drei Gauben eingeplant, die sich von innen wie von außen perfekt in das Wohnhaus einfügen.

Da die Kopfhöhe nicht ganz ausgereicht hat, um mit dem Haupttreppenhaus ins Dachgeschoss zu kommen, haben wir uns hier eine spezielle Lösung mit einem besonderen Dachflächenfenster einfallen lassen. Eine zusätzliche Gaube wäre nicht möglich gewesen, da wir die maximale Fläche, die in diesem Baugebiet erlaubt ist, schon eingeplant hatten. Zusätzlich bietet das großzügige Fenster natürlich viel Licht im Treppenhaus.
Wir können mit Stolz sagen, dass wir für drei Generationen ein gemeinsames Zuhause gebaut haben.
Baujahr 1965 II Umbau 2022 II Wohnfläche 260m² II Baukosten 260.000 €
